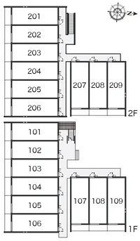
107~109号室、207~209号室(反転タイプ)
代表的な間取のため実際の間取とは異なる場合があります
2口電気コンロ(IH+ラジエントヒーター)
温水洗浄便座
クローゼット収納
屋根付き駐輪場
コンビニ 物件から630m、徒歩8分
スーパー 物件から960m、徒歩12分
ドラックストア 物件から1000m、徒歩13分
独立洗面台(1F:手すり有 2F:手すり無)
洗濯機
外観
和歌山市小雑賀3丁目・1K・南向き、宮前駅 徒歩14分 2階のマンスリーマンション!
空室カレンダーから即時仮予約が可能な物件です
1分で入力完了!見積書・空室状況を問合わせ和歌山市小雑賀3丁目・1K・南向き、宮前駅 徒歩14分 2階のマンスリーマンション!
※ 間取図・画像と現況が異なる場合は現況を優先します。
住所:
和歌山県和歌山市小雑賀3丁目
最寄駅:
紀勢本線
「宮前駅」
徒歩14分
- 入居可能人数 1名
- 保証人 要確認
- ネット環境
- 駐車場 空きあり
マンスリーマンションのメリット
- 家具、家電付き
- 引越し費用はかからない
- 水道、ガス、電気もすぐに使用できる
こんな人におすすめ
- アパートや賃貸物件を
探している人 - 長期滞在できる格安ホテルと
迷っている人 - 仮住まいできる場所を探している人
このお部屋の運営会社
レオパレスセンター和歌山
〒 640-8331 和歌山県和歌山市美園町2丁目1太陽生命和歌山第2ビル1F
営業時間:10:00-18:00
基本料金プラン見積書を依頼
お見積りの計算方法(日割り等)は運営会社によって異なります。
-
短期プラン|Lランク 30日以上~181日未満
- 月額目安
- 125,400円~
- 初期費用他
- 64,900円〜
月額費用内訳
-
部屋利用料
4,180円/日
-
マンスリー手数料
48,400円/回
-
鍵交換費
16,500円/回
-
同居人追加利用料
110円/日
-
最短30日から最長180日まで1日単位でご利用可能
※同居人は最大3名様までとなります。
このお部屋の設備情報
- エレベーター
- オートロック
- 宅配ボックス
- 防犯カメラ
- コンシェルジュ
- 駐輪場
- 自動販売機
- TVドアホン
- ゴミ捨て場
- 駐車場
建物設備
- エレベーター
- オートロック
- 宅配ボックス
- 防犯カメラ
- コンシェルジュ
- 駐輪場
- 自動販売機
- TVドアホン
- ゴミ捨て場
- 駐車場
その他建物設備:
部屋設備
家具類
- ベッド
- 椅子
- テーブル
- 食器棚
- カーテン
- デスク
- ローテーブル
- ソファ
家電類
- 電子レンジ
- テレビ
- 冷蔵庫
- 掃除機
- 暖房器具
- 炊飯器
- 洗濯機
- ドライヤー
- ガスコンロ
- IHコンロ
- 扇風機
- エアコン
- ポット・ケトル
- 空気清浄機
- 電気スタンド
- アイロン&台
- BS TV
- ケーブル TV
- トースター
寝具類
- 寝具一式
お風呂・トイレ
- ユニットバス
- バス・トイレ別
- 温水洗浄便座
- 洋式トイレ
- 和式トイレ
- 浴室乾燥機
その他
- 食器
- 調理器具
- フローリング
- 畳
- カーペット
- ロフト
- キッチン
- ブラインド
- ベランダ
- 独立洗面台
- シューズボックス
- 収納
その他部屋設備:
アクセス情報
クレイノエスパースの最寄り駅は 紀勢本線 「宮前駅」 です。
物件概要
| 所在地 | 和歌山県和歌山市小雑賀3丁目 クレイノエスパース | ||
|---|---|---|---|
| アクセス |
紀勢本線
「宮前駅」
徒歩14分 |
||
| 間取り | 1K | 面積 | 26.08m² |
| 築年数 | 2016年04月 築9年 | ||
| 建物構造 | 鉄骨造 | ||
| 物件種別 | アパート | ||
| 建物階数 | 地上2階 | 総戸数 | 18戸 |
| 契約形態 | その他 | 取引態様 | 貸主 |
| 部屋の向き | 南 | 鍵の種類 | |
| ベッドタイプ | その他 | ||
| 保証人 | 要確認 | ||
| ご利用時の注意事項 | |||
| お部屋に関するご案内事項 | フォームによる受付は入力日の翌日から60日後までとなっております。選択頂きました日時でご予約頂けない場合がございます。予めご了承下さい。当日のご来店については、お電話にて承ります。 | ||
| 入居可能日 | |||
〒 640-8331
和歌山県和歌山市美園町2丁目1太陽生命和歌山第2ビル1F
営業時間:10:00-18:00
免許番号:宅地建物取引業者免許:国土交通大臣免許(12)第2846号 賃貸住宅管理業者登録制度:国土交通大臣(02)第004651号
TEL:050-7586-1333似ている条件のお部屋
-
和歌山市
更新日 2025/12/18 21:05
クレイノエスパース 109(No.1254150)
インターネット使い放題・U-NEXT一般作品見放題プラン有
和歌山市小雑賀3丁目 1K 26.08m² 2016年04月築
カレンダー予約可
- 賃料
-
短期プラン|Mランク
月額目安 128,700円~
初期費用他 66,000円~
- 風呂・トイレ別
- 家具付賃貸
- 学生向け
- 出張・研修向け
運営会社:レオパレスセンター和歌山
-
和歌山市
更新日 2025/12/18 21:05
レオパレスグランドゥール太田 111(No.1240193)
インターネット使い放題・U-NEXT一般作品見放題プラン有
和歌山市太田 1K 23.61m² 2006年03月築
カレンダー予約可
- 賃料
-
短期プラン|Kランク
月額目安 118,800円~
初期費用他 63,800円~
- 風呂・トイレ別
- 家具付賃貸
- 学生向け
- 出張・研修向け
運営会社:レオパレスセンター和歌山
この物件と同一沿線内にある間取りが同じ物件
-
和歌山市
更新日 2025/12/18 21:05
クレイノエスパース 206(No.1052665)
インターネット使い放題・U-NEXT一般作品見放題プラン有
和歌山市小雑賀3丁目 1K 26.08m² 2016年04月築
カレンダー予約可
- 賃料
-
短期プラン|Nランク
月額目安 135,300円~
初期費用他 67,100円~
- 風呂・トイレ別
- 家具付賃貸
- 学生向け
- 出張・研修向け
運営会社:レオパレスセンター和歌山
-
和歌山市
更新日 2025/12/18 21:05
レオパレスウエストヒルズ 112(No.718218)
インターネット使い放題・U-NEXT一般作品見放題プラン有
和歌山市杭ノ瀬 1K 23.18m² 2009年03月築
カレンダー予約可
- 賃料
-
短期プラン|Kランク
月額目安 118,800円~
初期費用他 63,800円~
- 風呂・トイレ別
- 家具付賃貸
- 出張・研修向け
運営会社:レオパレスセンター和歌山
この物件と間取りが同じ最も近隣の物件
-
- 割引キャンペーン
和歌山市
更新日 2025/12/14 09:34
Kマンスリー紀三井寺駅北(和歌山県立医科大学附属病院北) 102・1K-102(No.834521)
【当月・翌月入居】最大10,000円値引きキャンペーン♪
【バストイレ別・独立洗面台付】紀三井寺駅から徒歩圏内★ 設備充実ダブルロックkeyで綺麗な築浅和歌山市マンスリーマンション物件です(^^)/
和歌山市三葛 1K 19.87m² 2022年6月築
- 賃料
-
ロング
月額目安 97,800円~
初期費用他 22,000円~
- 女性向け
- 保証人不要
- 風呂・トイレ別
- 家具付賃貸
- 禁煙ルーム
運営会社:株式会社ケイアイホールディングス
-
- 割引キャンペーン
和歌山市
更新日 2025/12/16 09:55
Kマンスリー和歌山県立医科大学附属病院西(和歌の浦アート・キューブ北) 202・202(No.850259)
【当月・翌月入居】最大10,000円値引きキャンペーン♪
【宅配ボックス付・インターネット無料】和歌山県立医科大学附属病院から徒歩圏内★割安なバストイレ別・独立洗面台付マンスリーマンション♬法人様契約歓迎!
和歌山市和歌浦東4丁目 1K 33m² 2002年2月築
- 賃料
-
ロング
月額目安 97,800円~
初期費用他 22,000円~
- 同棲向け
- インターネット無料
- wifiあり
- 保証人不要
- 家具付賃貸
運営会社:株式会社ケイアイホールディングス
この物件と運営会社が同じ物件
-
和歌山市
更新日 2025/12/18 21:05
レオパレスロイヤル 104(No.278549)
和歌山市塩屋1丁目 1K 20.28m² 2000年12月築
カレンダー予約可
- 賃料
-
短期プラン|Iランク
月額目安 112,200円~
初期費用他 61,600円~
- 風呂・トイレ別
- 家具付賃貸
- 出張・研修向け
運営会社:レオパレスセンター和歌山
-
和歌山市
更新日 2025/12/18 21:05
レオパレスロイヤル 206(No.703537)
和歌山市塩屋1丁目 1K 20.28m² 2000年12月築
カレンダー予約可
- 賃料
-
短期プラン|Jランク
月額目安 115,500円~
初期費用他 62,700円~
- 風呂・トイレ別
- 家具付賃貸
- 出張・研修向け
運営会社:レオパレスセンター和歌山
マンスリーマンションの契約方法~入居から退去までの流れ~
マンスリーマンションの契約はどのようにしたらよいのでしょうか?探し方や契約の注意点、退去するまでの流れについて解説します。
-
入居物件を探す
当サイトで入居を希望するエリアや設備などの条件を指定して物件を検索しましょう。
-
空室状況のご確認
希望の物件が見つかったら空室状況を確認しましょう。
お問い合わせフォームや電話で各不動産管理会社へ問い合わせが可能です。 -
お申込み・ご利用料金のお支払い
申込フォームなどで、契約者、入居者情報等を伝え、申込手続きが完了します。
申込内容で審査が通過すると契約手続きが可能となります。
契約書を取り交わした後、利用料金の支払いをすると契約手続きが完了します。 -
鍵のお受け渡し・ご入居
鍵の受け渡しは、カードキー貸与・暗証番号による通知、スマートロックなど、物件によって異なります。
チェックイン時間や方法は、事前に案内されるのでよく確認しておきましょう。
入居したら設備や備品を確認しましょう。エアコンや電子レンジ、ガスレンジが稼働するかどうか、トイレの水がきちんと流れるかなど水回りも確認しましょう。 -
退去
退去するときはできる限り片付けや掃除をしましょう。
キャンセルポリシー
<マンスリープラン>
1.途中で解約になる場合、ご利用のお部屋の原状回復費用が別途必要となる場合もございます。
2.利用料金お支払後に解約される場合、マンスリー手数料の返金はいたしませんが、未利用単位期間分に相当する部屋利用料は全額返金いたします。
<短期プラン>
ご契約期間開始日以降、ご契約期間満了日よりも前に中途解約を希望された場合、解約をお申入れいただいた日から10日後を解約日として中途解約することができます。但し、解約をお申入れいただいた日から10日後に満たない解約日にて中途解約を希望された場合には、解約をお申入れいただいた日から10日分に相当する部屋利用料について、部屋利用料及び違約金としてご負担いただくことにより、中途解約することができます。なお、解約日がご契約期間開始日から30日に満たない場合には、ご契約期間開始日から30日分に相当する部屋利用料について、部屋利用料及び違約金としてご負担いただきます(ご契約期間開始日から30日分については、返金の対象とはなりません)。 マンスリー手数料はご契約後、いかなる場合であっても返金することはできません(返金の対象とはなりません)。





スタッフコメント
インターネット使い放題・U-NEXT一般作品見放題プラン有
※水・光熱費 不要
※家具・家電付
※マンスリーランクはA~Zの26ランクがございます。
※マンスリーランクに応じた部屋利用料とマンスリー手数料がそれぞれ設定されております。マンスリーランクは予告無く変更される場合がございます。
※マンスリー手数料とは契約時に必要な手数料であり、キャンセルされた場合でも返金の対象となりません。
※お支払いは、ご契約時に一括前払いとなります。
※入居者の故意・過失による物件・設備への損傷が生じた場合、退室時に補修費用が必要となる場合があります。