洗面
トイレ(ウォシュレット・暖房便座あり)
※1F共有キッチン
※全自動洗濯機(1F共有スペースにあります)
外観
※ 間取図・画像と現況が異なる場合は現況を優先します。
住所:
石川県金沢市瓢箪町22-22-2
最寄駅:
IRいしかわ鉄道
「金沢駅」
徒歩13分
- 女性向け
- 駅近
- インターネット無料
- wifiあり
- 駐車場あり
- オートロック
- 風呂・トイレ別
- 禁煙ルーム
- デザイナーズ
- 学生向け
- 法人契約歓迎
- 出張・研修向け
- 閑静な住宅地
- テレワーク・在宅勤務可
- 特急対応可
- ワーケーション向け
- 入居可能人数 2名
- 保証人 不要
- ネット環境 あり無料 (Wi-Fiあり)
マンスリーマンションのメリット
- 家具、家電付き
- 引越し費用はかからない
- 水道、ガス、電気もすぐに使用できる
こんな人におすすめ
- アパートや賃貸物件を
探している人 - 長期滞在できる格安ホテルと
迷っている人 - 仮住まいできる場所を探している人
このお部屋の運営会社
株式会社ヤマキシ不動産
〒 921-8815 石川県野々市市本町6丁目12-70
営業時間:10:00~17:00 定休日:不定休
基本料金プラン見積書を依頼
お見積りの計算方法(日割り等)は運営会社によって異なります。
-
ロングひょうたん 211日以上~366日未満
- 月額目安
- 126,000円~
- 初期費用他
- 52,800円〜
月額費用内訳
-
賃料
3,320円/日
-
寝具/リネン関連
14,300円/回
-
清掃料
33,000円/回
-
手数料
5,500円/回
-
光熱費
550円/日
-
保険料
110円/日
-
管理費
220円/日
-
ミディアムひょうたん 91日以上~211日未満
- 月額目安
- 132,000円~
- 初期費用他
- 47,300円〜
月額費用内訳
-
賃料
3,520円/日
-
寝具/リネン関連
14,300円/回
-
清掃料
27,500円/回
-
手数料
5,500円/回
-
光熱費
550円/日
-
保険料
110円/日
-
管理費
220円/日
-
ベーシックひょうたん ~30日未満
- 月額目安
- 141,300円~
- 初期費用他
- 33,000円〜
月額費用内訳
-
賃料
3,720円/日
-
寝具/リネン関連
14,300円/回
-
清掃料
13,200円/回
-
手数料
5,500円/回
-
光熱費
660円/日
-
保険料
110円/日
-
管理費
220円/日
金沢駅から徒歩圏内にありながら、静かで落ち着いた環境のマンスリーマンションです。
室内は清潔感にあふれ、トイレとシャワーは独立しているので快適にお過ごしいただけます。
オートロックとWi-Fiも完備しており、安心してご滞在いただけます。
キッチンは共有ですが、徒歩圏内にはスーパー「マルエー」や近江町市場もあり、生活にも観光にも便利です。
このお部屋の設備情報
- エレベーター
- オートロック
- 宅配ボックス
- 防犯カメラ
- コンシェルジュ
- 駐輪場
- 自動販売機
- TVドアホン
- ゴミ捨て場
建物設備
- エレベーター
- オートロック
- 宅配ボックス
- 防犯カメラ
- コンシェルジュ
- 駐輪場
- 自動販売機
- TVドアホン
- ゴミ捨て場
その他建物設備:
部屋設備
家具類
- ベッド
- 椅子
- テーブル
- 食器棚
- カーテン
- デスク
- ローテーブル
- ソファ
家電類
- 電子レンジ
- テレビ
- 冷蔵庫
- 掃除機
- 暖房器具
- 炊飯器
- 洗濯機
- ドライヤー
- ガスコンロ
- IHコンロ
- 扇風機
- エアコン
- ポット・ケトル
- 空気清浄機
- 電気スタンド
- アイロン&台
- BS TV
- ケーブル TV
- トースター
寝具類
- 寝具一式
お風呂・トイレ
- ユニットバス
- バス・トイレ別
- 温水洗浄便座
- 洋式トイレ
- 和式トイレ
- 浴室乾燥機
その他
- 食器
- 調理器具
- フローリング
- 畳
- カーペット
- ロフト
- キッチン
- ブラインド
- ベランダ
- 独立洗面台
- シューズボックス
- 収納
その他部屋設備:
アクセス情報
Y-Stay ひょうたん町【金沢駅近くで安心・快適ステイ。オートロック&Wi-Fi完備の清潔マンスリー】の最寄り駅は IRいしかわ鉄道 「金沢駅」 です。
その他アクセス:金沢西ICから車で18分
物件概要
| 所在地 | 石川県金沢市瓢箪町22-22-2 グランリーナ金沢 | ||
|---|---|---|---|
| アクセス |
IRいしかわ鉄道
「金沢駅」
徒歩13分 |
||
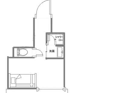
| 間取り | 1R | 面積 | 19.07m² |
| 築年数 | 2019年5月 築6年 | ||
| 建物構造 | 鉄骨造 | ||
| 物件種別 | その他 | ||
| 建物階数 | 地上3階 | 総戸数 | 7戸 |
| 契約形態 | 定期借家契約 | 取引態様 | 貸主 |
| 部屋の向き | 北東 | 鍵の種類 | 鍵 |
| ベッドタイプ | シングル | ||
| 保証人 | 不要 | ||
| ご利用時の注意事項 | |||
| お部屋に関するご案内事項 | |||
| 入居可能日 | 2025年11月 | ||
〒 921-8815
石川県野々市市本町6丁目12-70
営業時間:10:00~17:00 定休日:不定休
免許番号:石川県知事免許(1)第4466号
(公社)石川県宅地建物取引業協会会員/北陸不動産公正取引協議会加盟
(公社)全国宅地建物取引業保証協会
TEL:050-7587-0421似ている条件のお部屋
-
金沢市
更新日 2025/12/14 15:52
Y-Stay ひょうたん町【金沢駅近くで安心・快適ステイ。オートロック&Wi-Fi完備の清潔マンスリー】 101・1R(No.1242287)
金沢市瓢箪町 その他 18.47m² 2019年5月築
- 賃料
-
ロングひょうたん
月額目安 126,000円~
初期費用他 52,800円~
- 女性向け
- 駅近
- インターネット無料
- wifiあり
- 駐車場あり
運営会社:株式会社ヤマキシ不動産
-
金沢市
更新日 2025/12/14 15:51
Y-Stay ひょうたん町【金沢駅近くで安心・快適ステイ。オートロック&Wi-Fi完備の清潔マンスリー】 203・1R(No.1242309)
金沢市瓢箪町 1R 19.07m² 2019年5月築
- 賃料
-
ロングひょうたん
月額目安 126,000円~
初期費用他 52,800円~
- 女性向け
- 駅近
- インターネット無料
- wifiあり
- 駐車場あり
運営会社:株式会社ヤマキシ不動産
この物件と同一沿線内にある間取りが同じ物件
-
- キャンペーン
金沢市
更新日 2025/12/14 09:36
Kマンスリー金沢駅前(元菊町)【禁煙・金沢駅前マンスリーマンション】 213・2F・【中部屋】(No.770077)
【リピーター限定】2回目以降のご利用初期費用激安キャンペーン
【WiFi可・駐車場完備】金沢駅前マンスリーマンション【家具家電完備・空気清浄機完備】
金沢市元菊町 1R 21m² 1989年4月築
- 賃料
-
ロング
月額目安 117,900円~
初期費用他 22,000円~
- 駅近
- wifiあり
- 駐車場あり
- 手数料無料
- 保証人不要
運営会社:株式会社ケイアイホールディングス
-
金沢市
更新日 2025/12/14 15:49
Y-Stay ひょうたん町【金沢駅近くで安心・快適ステイ。オートロック&Wi-Fi完備の清潔マンスリー】 202・1R(No.1242307)
金沢市瓢箪町 1R 22.81m² 2019年5月築
- 賃料
-
ロングひょうたん
月額目安 126,000円~
初期費用他 52,800円~
- 女性向け
- 駅近
- インターネット無料
- wifiあり
- 駐車場あり
運営会社:株式会社ヤマキシ不動産
この物件と間取りが同じ最も近隣の物件
-
金沢市
更新日 2025/12/14 15:47
Y-Stay ひょうたん町【金沢駅近くで安心・快適ステイ。オートロック&Wi-Fi完備の清潔マンスリー】 302・1R(No.1242311)
金沢市瓢箪町 1R 22.81m² 2019年5月築
- 賃料
-
ロングひょうたん
月額目安 126,000円~
初期費用他 52,800円~
- 女性向け
- 駅近
- インターネット無料
- wifiあり
- 駐車場あり
運営会社:株式会社ヤマキシ不動産
-
金沢市
更新日 2025/12/14 17:29
金沢駅2分‼天然温泉★Wi-Fi ドーミーイン金沢 禁煙ダブル(No.479236)
JR金沢駅東口から徒歩2分!毎日夜泣きそば(らーめん)無料提供♪
金沢市堀川新町 1R 15m²
- 賃料
-
マンスリー30プランD(お部屋によって金額変動あり)
月額目安 277,200円~
初期費用他 0円~
- 女性向け
- 駅近
- インターネット無料
- wifiあり
- 駐車場あり
運営会社:株式会社共立メンテナンス
この物件と運営会社が同じ物件
-
金沢市
更新日 2025/12/14 15:48
Y-Stay ひょうたん町【金沢駅近くで安心・快適ステイ。オートロック&Wi-Fi完備の清潔マンスリー】 201・1R(No.1242306)
金沢市瓢箪町 その他 18.47m² 2019年5月築
- 賃料
-
ロングひょうたん
月額目安 126,000円~
初期費用他 52,800円~
- 女性向け
- 駅近
- インターネット無料
- wifiあり
- 駐車場あり
運営会社:株式会社ヤマキシ不動産
-
金沢市
更新日 2025/12/14 15:45
Y-Stay ひょうたん町【金沢駅近くで安心・快適ステイ。オートロック&Wi-Fi完備の清潔マンスリー】 301・1R(No.1242310)
金沢市瓢箪町 その他 18.47m² 2019年5月築
- 賃料
-
ロングひょうたん
月額目安 126,000円~
初期費用他 52,800円~
- 女性向け
- 駅近
- インターネット無料
- wifiあり
- 駐車場あり
運営会社:株式会社ヤマキシ不動産
マンスリーマンションの契約方法~入居から退去までの流れ~
マンスリーマンションの契約はどのようにしたらよいのでしょうか?探し方や契約の注意点、退去するまでの流れについて解説します。
-
入居物件を探す
当サイトで入居を希望するエリアや設備などの条件を指定して物件を検索しましょう。
-
空室状況のご確認
希望の物件が見つかったら空室状況を確認しましょう。
お問い合わせフォームや電話で各不動産管理会社へ問い合わせが可能です。 -
お申込み・ご利用料金のお支払い
申込フォームなどで、契約者、入居者情報等を伝え、申込手続きが完了します。
申込内容で審査が通過すると契約手続きが可能となります。
契約書を取り交わした後、利用料金の支払いをすると契約手続きが完了します。 -
鍵のお受け渡し・ご入居
鍵の受け渡しは、カードキー貸与・暗証番号による通知、スマートロックなど、物件によって異なります。
チェックイン時間や方法は、事前に案内されるのでよく確認しておきましょう。
入居したら設備や備品を確認しましょう。エアコンや電子レンジ、ガスレンジが稼働するかどうか、トイレの水がきちんと流れるかなど水回りも確認しましょう。 -
退去
退去するときはできる限り片付けや掃除をしましょう。
キャンセルポリシー
【定期借家契約について(借地借家法第38条3項、4項に基づく説明)】
上記物件の賃貸借契約は更新がなく、期間満了とともに契約は終了します。よって期間満了日の翌日を始期とする、新たな定期借家契約(再契約)を締結する場合を除き、期間満了日までに上記物件を明渡さなければなりません。但し、期間確定による契約の場合は、再契約及び途中解約ができません。予めご了承下さい。
申込書受理後、在籍確認、本人確認などの入居審査をさせて頂きます。お申込受付後、ご契約開始日まで残り1ヶ月未満の期間でのキャンセルについては、賃料全額(但し1ヶ月分を上限とする)のキャンセル料がかかります。




