外観
短期OK!上熊本駅近くの家具家電付き1K♪
短期OK!上熊本駅近くの家具家電付き1K♪
※ 間取図・画像と現況が異なる場合は現況を優先します。
住所:
熊本県熊本市西区上熊本3丁目5-48
最寄駅:
鹿児島本線
「上熊本駅」
徒歩7分
- 入居可能人数 2名
- 保証人 必要
- ネット環境 あり無料 (Wi-Fiあり)
- 駐車場 空きあり
マンスリーマンションのメリット
- 家具、家電付き
- 引越し費用はかからない
- 水道、ガス、電気もすぐに使用できる
こんな人におすすめ
- アパートや賃貸物件を
探している人 - 長期滞在できる格安ホテルと
迷っている人 - 仮住まいできる場所を探している人
このお部屋の運営会社
株式会社すがコーポレーション
〒 862-0924 熊本県熊本市中央区帯山4丁目52番31号
営業時間:
基本料金プラン見積書を依頼
お見積りの計算方法(日割り等)は運営会社によって異なります。
-
マンスリープラン ~30日未満
- 月額目安
- 144,200円~
- 初期費用他
- 0円〜
月額費用内訳
-
賃料
120,000円/月
-
光熱費
16,500円/月
-
保険料
2,200円/月
-
駐車場利用
5,500円/月
-
※2〜11カ月プランの賃料については別途お問い合わせください。
\キャンペーン中/CAMPAIGN
グループ物件OPEN記念キャンペーン
- 特典内容
- このたび、当社の新マンスリーマンションOPENを記念して、
既存物件でもキャンペーンを開催中!
\今だけ!事務手数料 半額!/
通常 11,000円(税込) → 5,500円(税込) に! - 利用条件
- 当サイト(※)からのお申込み・ご契約 上記期間中にご入居・ご滞在された方
- 対象期間
- 2025-11-01〜2025-12-31
他キャンペーンとの併用はできません。 キャンペーンは予告なく終了する場合があります。 申込み時に「キャンペーンを見た」とお伝えください。
短期OK!上熊本駅近くの家具家電付き1K♪
上熊本駅徒歩圏内、便利な立地にある1Kのお部屋です。家具家電付きで、敷金・礼金不要!インターネット完備&防犯カメラ付きで、快適かつ安心の暮らしが実現できます。近隣には24時間営業のスーパーもあり、生活にも便利。法人契約・短期利用もご相談ください!
非喫煙者限定
※2〜11カ月プランの賃料については別途お問い合わせください。
各種手続き等により、お申込み~入居までに日数をいただく可能性があります。
ご依頼頂いてから空き状況を確認のうえ、ご連絡させていただきます。
掲載の賃料は人数が1名様の料金です。入居頂く人数によって料金が変わります。
記載の設備も人数が1名様を想定しています。 2名様以上でご入居の場合、寝具等が人数分必要な場合は追加料金がかかります。
設備は追加でご注文可能です。
駐車場が設置されている物件について、駐車場をご利用いただく場合は別途追加料金がかかります。
清掃料、寝具レンタル料 22,000円/回
契約事務手数料 5,500円
保険料 2,200円/月
水道光熱費 16,500円/月
1棟内に複数お部屋がありますので別途お問い合わせください。
このお部屋の設備情報
- エレベーター
- オートロック
- 宅配ボックス
- 防犯カメラ
- コンシェルジュ
- 駐輪場
- 自動販売機
- TVドアホン
- ゴミ捨て場
- 駐車場
建物設備
- エレベーター
- オートロック
- 宅配ボックス
- 防犯カメラ
- コンシェルジュ
- 駐輪場
- 自動販売機
- TVドアホン
- ゴミ捨て場
- 駐車場
その他建物設備:
部屋設備
家具類
- ベッド
- 椅子
- テーブル
- 食器棚
- カーテン
- デスク
- ローテーブル
- ソファ
家電類
- 電子レンジ
- テレビ
- 冷蔵庫
- 掃除機
- 暖房器具
- 炊飯器
- 洗濯機
- ドライヤー
- ガスコンロ
- IHコンロ
- 扇風機
- エアコン
- ポット・ケトル
- 空気清浄機
- 電気スタンド
- アイロン&台
- BS TV
- ケーブル TV
- トースター
寝具類
- 寝具一式
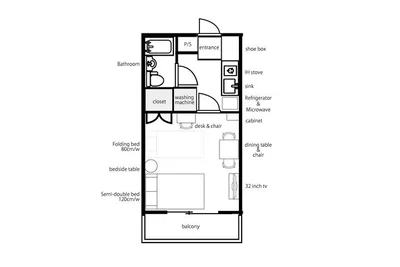
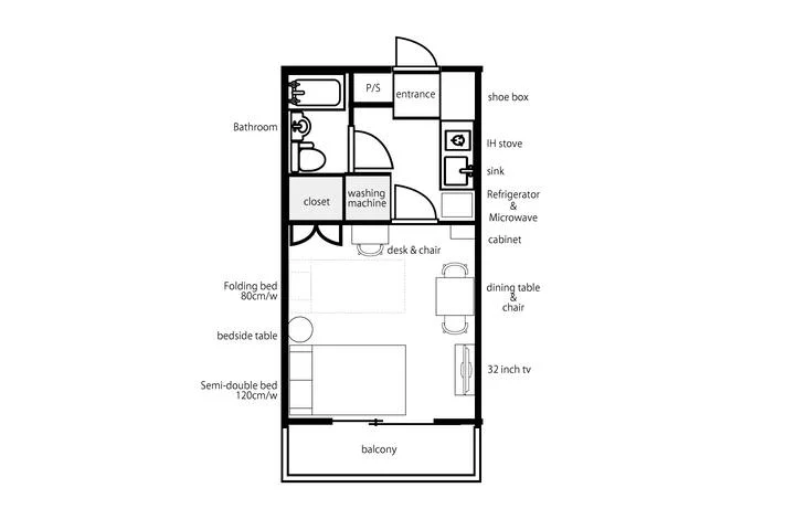
お風呂・トイレ
- ユニットバス
- バス・トイレ別
- 温水洗浄便座
- 洋式トイレ
- 和式トイレ
- 浴室乾燥機
その他
- 食器
- 調理器具
- フローリング
- 畳
- カーペット
- ロフト
- キッチン
- ブラインド
- ベランダ
- 独立洗面台
- シューズボックス
- 収納
その他部屋設備:
アクセス情報
クオリア上熊本の最寄り駅は 鹿児島本線 「上熊本駅」 です。
周辺環境:えきマチ1丁目上熊本(ショッピングセンター)まで370m
イワサキACE JR上熊本駅店(スーパー)まで365m
ディスカウントドラッグコスモス花園店(ドラッグストア)まで928m
マツモトキヨシ上熊本駅通店(ドラッグストア)まで821m
ドラッグストアモリ京町店(ドラッグストア)まで1318m
セブンイレブン熊本池田1丁目店(コンビニ)まで896m
物件概要
| 所在地 | 熊本県熊本市西区上熊本3丁目5-48 クオリア上熊本 | ||
|---|---|---|---|
| アクセス |
鹿児島本線
「上熊本駅」
徒歩7分 |
||
| 間取り | 1K | 面積 | 23m² |
| 築年数 | 1996年2月 築29年 | ||
| 建物構造 | 鉄骨造 | ||
| 物件種別 | アパート | ||
| 建物階数 | 地上3階 | 総戸数 | 12戸 |
| 契約形態 | 定期借家契約 | 取引態様 | その他 |
| 部屋の向き | タイプによって異なる | 鍵の種類 | 鍵 |
| ベッドタイプ | セミダブル 80cmの折りたたみベッドもあり | ||
| 保証人 | 必要 | ||
| ご利用時の注意事項 | |||
| お部屋に関するご案内事項 | |||
| 入居可能日 | 即時 | ||
似ている条件のお部屋
-
- 割引キャンペーン
熊本市西区
更新日 2025/11/30 18:47
クオリア上熊本 206・1K(No.1123393)
グループ物件OPEN記念キャンペーン
短期OK!上熊本駅近くの家具家電付き1K♪
熊本市西区上熊本3丁目 1K 23m² 1996年2月築
- 賃料
-
マンスリープラン
月額目安 144,200円~
初期費用他 0円~
- 駅近
- インターネット無料
- wifiあり
- 駐車場あり
- 家具付賃貸
運営会社:株式会社すがコーポレーション
-
- 割引キャンペーン
熊本市西区
更新日 2025/11/30 18:43
クオリア上熊本 205・1K(No.1123392)
グループ物件OPEN記念キャンペーン
短期OK!上熊本駅近くの家具家電付き1K♪
熊本市西区上熊本3丁目 1K 23m² 1996年2月築
- 賃料
-
マンスリープラン
月額目安 144,200円~
初期費用他 0円~
- 駅近
- インターネット無料
- wifiあり
- 駐車場あり
- 家具付賃貸
運営会社:株式会社すがコーポレーション
この物件と同一沿線内にある間取りが同じ物件
-
- 割引キャンペーン
熊本市西区
更新日 2025/11/30 18:40
クオリア上熊本 203・1K(No.1123391)
グループ物件OPEN記念キャンペーン
短期OK!上熊本駅近くの家具家電付き1K♪
熊本市西区上熊本3丁目 1K 23m² 1996年2月築
- 賃料
-
マンスリープラン
月額目安 144,200円~
初期費用他 0円~
- 駅近
- インターネット無料
- wifiあり
- 駐車場あり
- 家具付賃貸
運営会社:株式会社すがコーポレーション
-
- 割引キャンペーン
熊本市西区
更新日 2025/11/30 18:14
クオリア上熊本 201・1K(No.1123389)
グループ物件OPEN記念キャンペーン
短期OK!上熊本駅近くの家具家電付き1K♪
熊本市西区上熊本3丁目 1K 23m² 1996年2月築
- 賃料
-
マンスリープラン
月額目安 144,200円~
初期費用他 0円~
- 駅近
- インターネット無料
- wifiあり
- 駐車場あり
- 家具付賃貸
運営会社:株式会社すがコーポレーション
この物件と間取りが同じ最も近隣の物件
-
- 割引キャンペーン
熊本市西区
更新日 2025/11/30 16:15
サンハイツ上熊本 1K(No.1054319)
割引キャンペーン
喫煙可部屋あり!インターネット無料!同じ建物で複数室ご案内可能!法人様にもオススメ~広い駐車場はハイエースも楽々駐車可能です☆
熊本市西区上熊本3丁目 1K 19.17m²
- 賃料
-
基本プラン
月額目安 108,900円~
初期費用他 35,300円~
- 駅近
- インターネット無料
- 駐車場あり
- 保証人不要
- 法人契約歓迎
運営会社:株式会社SINBA
-
- 割引キャンペーン
熊本市西区
更新日 2025/11/30 21:25
Kマンスリー崇城大学前(桜が丘病院前) 301・1K-【角部屋】(No.482211)
☆12月契約入居に限り1万円分あたる!先着5名様限定QUOカード
【駐輪場あり・ソファ付】崇城大学や桜ケ丘病院が近くで駐車場有で車移動も可能!研修や付き添い等へオススメでお部屋広々マンスリーマンション!
熊本市西区池田2丁目 1K 21.25m² 1985年4月築
- 賃料
-
ロング【崇城大学前(桜が丘病院前)】
月額目安 85,050円~
初期費用他 22,000円~
- 同棲向け
- 駐車場あり
- 保証人不要
- 家具付賃貸
- 禁煙ルーム
運営会社:株式会社ケイアイホールディングス
この物件と運営会社が同じ物件
-
- 割引キャンペーン
熊本市中央区
更新日 2025/11/30 07:50
KUMAMOTO MUKAEMACHI 201・2DK(No.1123497)
グループ物件OPEN記念キャンペーン
繁華街徒歩圏内!利便性重視の格安1K♪
熊本市中央区迎町1丁目 2DK 30m² 1972年7月築
- 賃料
-
マンスリープラン
月額目安 144,200円~
初期費用他 0円~
- ファミリー向け
- 駅近
- インターネット無料
- wifiあり
- 駐車場あり
運営会社:株式会社すがコーポレーション
-
- 割引キャンペーン
熊本市中央区
更新日 2025/11/30 06:59
オーシャンヴィレッジ大江本町 701・1K(No.1123500)
グループ物件OPEN記念キャンペーン
繁華街、電車通り近く交通便利な広々マンション。九州各地への移動便利な味噌天神バス停近く シェア 保存
熊本市中央区大江本町 1K 28m²
- 賃料
-
マンスリープラン
月額目安 163,900円~
初期費用他 0円~
- 女性向け
- 同棲向け
- 高級・ハイグレード
- 駅近
- インターネット無料
運営会社:株式会社すがコーポレーション
マンスリーマンションの契約方法~入居から退去までの流れ~
マンスリーマンションの契約はどのようにしたらよいのでしょうか?探し方や契約の注意点、退去するまでの流れについて解説します。
-
入居物件を探す
当サイトで入居を希望するエリアや設備などの条件を指定して物件を検索しましょう。
-
空室状況のご確認
希望の物件が見つかったら空室状況を確認しましょう。
お問い合わせフォームや電話で各不動産管理会社へ問い合わせが可能です。 -
お申込み・ご利用料金のお支払い
申込フォームなどで、契約者、入居者情報等を伝え、申込手続きが完了します。
申込内容で審査が通過すると契約手続きが可能となります。
契約書を取り交わした後、利用料金の支払いをすると契約手続きが完了します。 -
鍵のお受け渡し・ご入居
鍵の受け渡しは、カードキー貸与・暗証番号による通知、スマートロックなど、物件によって異なります。
チェックイン時間や方法は、事前に案内されるのでよく確認しておきましょう。
入居したら設備や備品を確認しましょう。エアコンや電子レンジ、ガスレンジが稼働するかどうか、トイレの水がきちんと流れるかなど水回りも確認しましょう。 -
退去
退去するときはできる限り片付けや掃除をしましょう。
キャンセルポリシー
【定期借家契約について(借地借家法第38条2項に基づく説明)】
上記物件の賃貸借契約は更新がなく、期間満了とともに契約は終了します。よって期間満了日の翌日を始期とする、新たな定期借家契約(再契約)を締結する場合を除き、期間満了日までに上記物件を明渡さなければなりません。但し、期間確定による契約の場合は、再契約及び途中解約ができません。予めご了承下さい。
申込書受理後、在籍確認、本人確認などの入居審査をさせて頂きます。お申込受付後、ご契約開始日まで残り1ヶ月未満の期間でのキャンセルについては、賃料全額(但し1ヶ月分を上限とする)のキャンセル料がかかります。
上記の申込み内容に相違ございません。万が一内容に虚偽があった場合は、契約解除になろうとも一切異議申立てを致しません。
上記物件が定期借家契約であることを受諾しました。





スタッフコメント
上熊本駅徒歩圏内、便利な立地にある1Kのお部屋です。家具家電付きで、敷金・礼金不要!インターネット完備&防犯カメラ付きで、快適かつ安心の暮らしが実現できます。近隣には24時間営業のスーパーもあり、生活にも便利。法人契約・短期利用もご相談ください!
非喫煙者限定